Casa semindipendente in Vendita - Zona Marina di Massa
Comune: Massa
Classe energetica
EP glnr: 219.80 kwh/m²
Marina di Massa, bellissima Villetta a schiera di generose dimensioni in Vendita, ubicata in posizione strategica vicino al centro al mare e tutti i principali servizi.
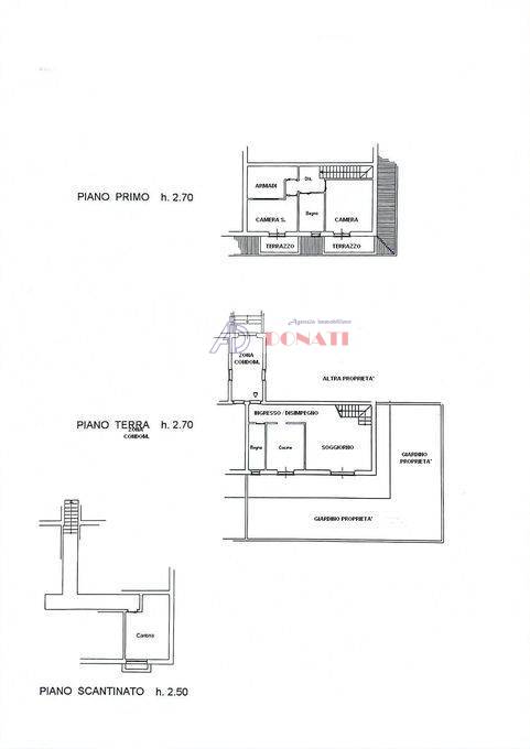
La proprietà disposta su due livelli è così suddivisa:
-Piano terra: vi è un ampio e luminoso soggiorno open – space con zona pranzo e cucina a vista, dai quali è possibile accedere al giardino privato angolare, ben piantumato con siepi perimetrali che creano una bella estetica e privacy con le Villette limitrofe, ideale da utilizzare come zona pranzo esterna e relax dove poter trascorrere momenti di convivialità all'aperto. Completa il piano terra un bagno con doccia.
-Piano Primo: un'ampia e luminosa camera matrimoniale dotata di balcone privato, un bagno con vasca, una camera singola con balcone privato, una camera armadi utilizzabile all'occorrenza come eventuale terza camera o studio. La conformazione del piano primo offre la possibilità di essere ottimizzato in base alle proprie esigenze, esempio, eliminando solamente la parete che divide la camera singola con la camera armadi è possibile ricavarne una seconda ampia camera matrimoniale, oppure una seconda camera dotata di bagno en-suite.
La Villetta è dotata inoltre di una cantina di proprietà al piano interrato e di due posti auto privati nell'area condominiale.
La configurazione e la zona in cui è ubicata questa proprietà, la rendono una soluzione ideale sia per chi cerca una casa al mare dove poter trascorrere le proprie vacanze, o per chi cerca una soluzione residenziale da vivere tutto l'anno.


























